Trilocale in vendita

Cesena, Via Raffaele Paolucci - Ospedale
€ 219.000
3 locali 3 locali
84 Mq 84 Mq
1 bagno 1 bagno

Trilocale in vendita

Cesena, Via Raffaele Paolucci - Ospedale

Descrizione annuncio

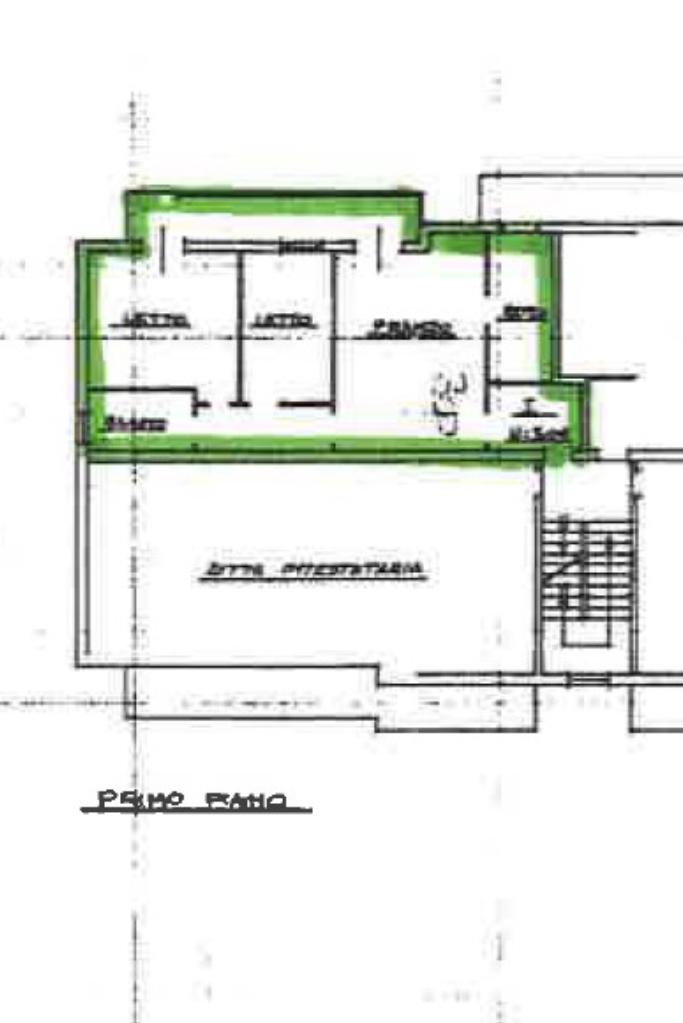
Cesena: in zona Ospedale vicino ai principali servizi di quartiere proponiamo in vendita trilocale ristrutturato al primo piano senza ascensore.

L'appartamento è composto da un ampio ingresso che ci porta al soggiorno servito da balcone, con retro cucina.

Tramite disimpegno si raggiunge la zona notte con una camera da letto singola ed una matrimoniale da cui si ha accesso al balcone.

Completa il piano il bagno finestrato.

Fa parte della proprietà la cantina al piano seminterrato.

Per qualsiasi ulteriore informazione fissa un appuntamento in agenzia, chiama lo 0547.062315

Mostra tutto

Nelle vicinanze

Trasporto pubblico Trasporto pubblico
stazione di Cesena
stazione di Cesena
1,6 Km
Madre Teresa di Calcutta
Madre Teresa di Calcutta
90 m
Verazzano
Verazzano
130 m
Ricariche auto elettriche Ricariche auto elettriche
Eneldrive Centro Commerciale Montefiore
890 m
EnelX EVA+ Cesena Centro Commerciale Montefiore
960 m
Eneldrive Carducci
1,3 Km
Eneldrive Rocca Malatestiana
1,8 Km
Eneldrive Centro Commerciale Lungo Savio
2,2 Km
Scuole Scuole
Seminario Vescovile di Cesena
220 m
Scuola Primaria "Salvo D'Acquisto"
240 m
Liceo della Comunicazione "Immacolata"
250 m
Scuole
250 m
Scuola Materna
460 m
Farmacia Farmacia
Farmacia
610 m
Parafarmacia Conad
1,0 Km
Farmacia Giardino
1,1 Km
Ospedali Ospedali
Ospedale Maurizio Bufalini
320 m
Supermercati Supermercati
A&O
440 m
Conad
640 m
IL PUNTO NATURALE
1,5 Km
Conad Ponte Abbadesse
1,9 Km
Ipercoop
2,3 Km
Negozi Negozi
NaturaSi
1,5 Km
RE' DI PANE
1,5 Km
Negozi
2,5 Km
Bar Bar
Bar
300 m
IL CAFFEINA
1,1 Km
DRINK
1,1 Km
LA CANTERA
1,2 Km
Caffe Capolinea
1,5 Km
Ristoranti Ristoranti
Pizzeria DA BALDO
650 m
PICCOLISSIMO **** Ristorante e pizzeria 100 mt
840 m
Pizzeria Lucullo
1,4 Km
IL LAMPIONE
1,4 Km
Un Punto Macrobiotico
1,4 Km
Mostra tutto

Caratteristiche

Rif.:
61167917
Piano:
1 di 3 (Piano basso)
Balconi:
1
Camere da letto:
2
Arredamento:
Assente
Condizionamento:
Predisposizione impianto
Mostra tutto
Prezzo Prezzo
€ 219.000
Rata mutuo Rata mutuo
€ 1.032 / mese
Spese annue Spese annue
€ 800
Proponi il tuo prezzoProponi il tuo prezzo
Immobile valutato con T·Valuta

Classe Energetica

D
D
D
D
D
D
D
D
D
EP globale non rinnovabile:
113.27 kW h/m² anno
EP globale rinnovabile:
113.27 kW h/m² anno
EP invernale del fabbricato:
EP estiva del fabbricato:
Anno di costruzione:
1980
Riscaldamento:
Autonomo
Tipo impianto:
A radiatori
Tipo alimentazione:
Altro

Ti interessa visionare l'immobile?

Fissa un appuntamento  Fissa un appuntamento

Richiedi informazioni

Clicca su Leggi per aprire l'informativa
* Questi campi sono obbligatori

Calcola il tuo mutuo

Semplice e senza impegno
Anticipo

( % )
Mutuo

( % )

pochi semplici passi

inserisci i tuoi dati
Questionario completato
Grazie per aver richiesto un appuntamento senza impegno con un nostro Consulente del Credito e Assicurativo.

Hai inserito correttamente tutti i dati necessari e a breve riceverai una e-mail con un link da convalidare per inviare i tuoi dati.
Affiliato
Studio Centro Urbano Srl
Viale Giovanni Bovio, 672 47023 Cesena (FC)

Il nostro staff


  • Claudio Balducci
    Affiliato

  • Alessandro Casadei
    Responsabile

  • Martina Di Filippo
    Coordinatrice

  • Elia Montalti
    Collaboratore

  • Daniele Pellegrino
    Affiliato
Viale Giovanni Bovio, 672 47023 Cesena (FC)
Zona: Centro Urbano-Stadio-Fiorita-Ospedale-Case Missiroli-Calisese
Mostra su mappa
Orari: Dal lunedì al venerdì dalle 9 alle 13 e dalle 15 alle 19.30. Sabato dalle 9 alle 13
Affiliato
Studio Centro Urbano Srl
Viale Giovanni Bovio, 672 47023 Cesena (FC)

2026 Tecnocasa Franchising S.p.A. - P. IVA 08365160152 - Via Monte Bianco 60/A 20089 Rozzano (MI). Ogni agenzia ha un proprio titolare ed è autonoma. Privacy policy | Policy utilizzo | Cookie policy