Residenza Marconi

Cesena (FC)
€ 555.000 - 619.000
4 Locali 4 Locali
190 - 212 Mq 190 - 212 Mq

Residenza Marconi

Cesena (FC)

Descrizione annuncio

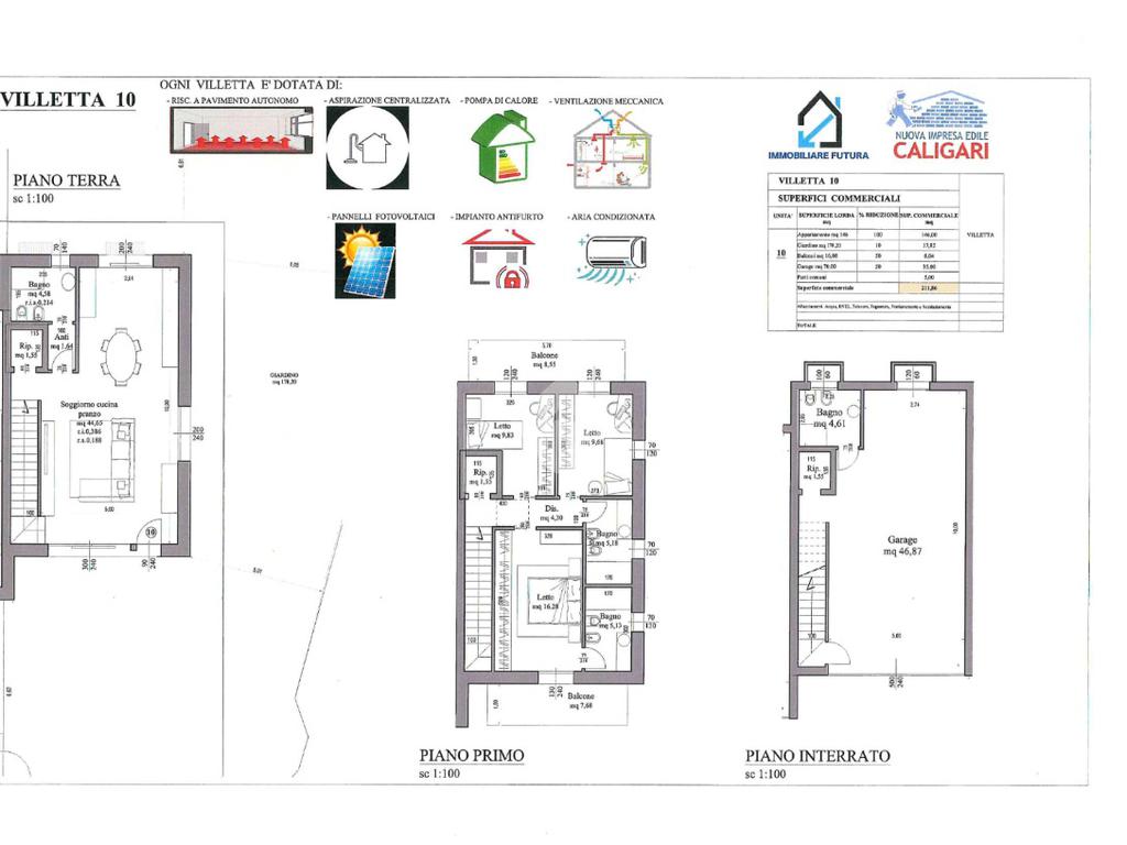
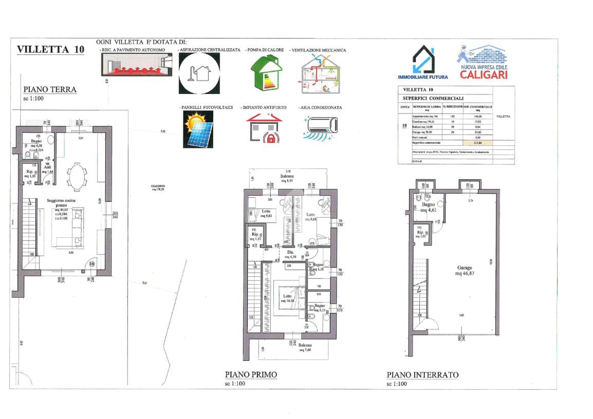
VILLETTE A SCHIERA DI NUOVA COSTRUZIONE – CONSEGNA 2027 Cesena – Centro Urbano Se cerchi una soluzione moderna, sostenibile e con ogni comfort già incluso, questa villetta a schiera di nuova generazione è la scelta giusta. La praticità della posizione incontra la tranquillità di una zona residenziale moderna e molto richiesta. Le villette uniscono design, funzionalità e tecnologie avanzate per offrirti un’esperienza abitativa di livello superiore. Cosa rende unica questa villetta? Spazi comodi e ben distribuiti: al piano terra troviamo un ampio open-space, soggiorno con cucina a vista perfettamente illuminati, bagno finestrato e ripostiglio. Il primo piano offre tre camere da letto, di cui una matrimoniale e due singole, ognuna con accesso al balcone e ulteriori due bagni finestrati. Il garage di 56 mq si trova al piano interrato che ospita anche il quarto bagno della villetta e un locale ripostiglio. Completa la proprietà il giardino privato ideale per cene all’aperto e momenti di relax totale. Queste villette nascono per garantirti benessere, efficienza e zero pensieri: - Riscaldamento a pavimento - Ventilazione meccanica controllata - Aria condizionata - Pompa di calore ad alta efficienza - Pannelli fotovoltaici per abbattere i consumi - Aspirazione centralizzata - Impianto antifurto installato - Isolamenti termoacustici avanzati per un comfort totale - Garage multifunzionale Una soluzione perfetta per chi vuole qualità, stile moderno e zero rinunce. Chiamaci per saperne di più.
Mostra tutto
Residenza Marconi
VILLETTE A SCHIERA DI NUOVA COSTRUZIONE – CONSEGNA 2027 Cesena – Centro Urbano Se cerchi una soluzione moderna, sostenibile e con ogni comfort già incluso, questa villetta a schiera di nuova generazione è la scelta giusta. La praticità della posizione incontra la tranquillità di una zona residenziale moderna e molto richiesta. Le villette uniscono design, funzionalità e tecnologie avanzate per offrirti un’esperienza abitativa di livello superiore. Cosa rende unica questa villetta? Spazi comodi e ben distribuiti: al piano terra troviamo un ampio open-space, soggiorno con cucina a vista perfettamente illuminati, bagno finestrato e ripostiglio. Il primo piano offre tre camere da letto, di cui una matrimoniale e due singole, ognuna con accesso al balcone e ulteriori due bagni finestrati. Il garage di 56 mq si trova al piano interrato che ospita anche il quarto bagno della villetta e un locale ripostiglio. Completa la proprietà il giardino privato ideale per cene all’aperto e momenti di relax totale. Queste villette nascono per garantirti benessere, efficienza e zero pensieri: - Riscaldamento a pavimento - Ventilazione meccanica controllata - Aria condizionata - Pompa di calore ad alta efficienza - Pannelli fotovoltaici per abbattere i consumi - Aspirazione centralizzata - Impianto antifurto installato - Isolamenti termoacustici avanzati per un comfort totale - Garage multifunzionale Una soluzione perfetta per chi vuole qualità, stile moderno e zero rinunce. Chiamaci per saperne di più.

Tipologie e prezzi

villa a schiera centrale
€555.000 - €560.000
190 - 212 Mq 190 mq - 192 mq
4 Locali 4 Locali
VILLETTE A SCHIERA CENTRALE DI NUOVA COSTRUZIONE – CONSEGNA 2027 Cesena – Centro Urbano Se cerchi una soluzione moderna, sostenibile e con ogni comfort già incluso, questa villetta a schiera di nuova generazione è la scelta giusta. La praticità della posizione incontra la tranquillità di una zona residenziale moderna e molto richiesta. Le villette uniscono design, funzionalità e tecnologie avanzate per offrirti un’esperienza abitativa di livello superiore. Cosa rende unica questa villetta? Spazi comodi e ben distribuiti: al piano terra troviamo un ampio open-space, soggiorno con cucina a vista perfettamente illuminati, bagno finestrato e ripostiglio. Il primo piano offre tre camere da letto, di cui una matrimoniale e due singole, ognuna con accesso al balcone e ulteriori due bagni finestrati. Il garage di 56 mq si trova al piano interrato che ospita anche il quarto bagno della villetta e un locale ripostiglio. Completa la proprietà il giardino privato ideale per cene all’aperto e momenti di relax totale. Queste villette nascono per garantirti benessere, efficienza e zero pensieri: - Riscaldamento a pavimento - Ventilazione meccanica controllata - Aria condizionata - Pompa di calore ad alta efficienza - Pannelli fotovoltaici per abbattere i consumi - Aspirazione centralizzata - Impianto antifurto installato - Isolamenti termoacustici avanzati per un comfort totale - Garage multifunzionale Una soluzione perfetta per chi vuole qualità, stile moderno e zero rinunce. Chiamaci per saperne di più.
villa a schiera d'angolo
€613.000 - €619.000
190 - 212 Mq 201 mq - 212 mq
4 Locali 4 Locali
VILLETTE A SCHIERA ANGOLARE DI NUOVA COSTRUZIONE – CONSEGNA 2027 Cesena – Centro Urbano Se cerchi una soluzione moderna, sostenibile e con ogni comfort già incluso, questa villetta a schiera di nuova generazione è la scelta giusta. La praticità della posizione incontra la tranquillità di una zona residenziale moderna e molto richiesta. Le villette uniscono design, funzionalità e tecnologie avanzate per offrirti un’esperienza abitativa di livello superiore. Cosa rende unica questa villetta? Spazi comodi e ben distribuiti: al piano terra troviamo un ampio open-space, soggiorno con cucina a vista perfettamente illuminati, bagno finestrato e ripostiglio. Il primo piano offre tre camere da letto, di cui una matrimoniale e due singole, ognuna con accesso al balcone e ulteriori due bagni finestrati. Il garage di 56 mq si trova al piano interrato che ospita anche il quarto bagno della villetta e un locale ripostiglio. Completa la proprietà il giardino privato ideale per cene all’aperto e momenti di relax totale. Queste villette nascono per garantirti benessere, efficienza e zero pensieri: - Riscaldamento a pavimento - Ventilazione meccanica controllata - Aria condizionata - Pompa di calore ad alta efficienza - Pannelli fotovoltaici per abbattere i consumi - Aspirazione centralizzata - Impianto antifurto installato - Isolamenti termoacustici avanzati per un comfort totale - Garage multifunzionale Una soluzione perfetta per chi vuole qualità, stile moderno e zero rinunce. Chiamaci per saperne di più.

Classe Energetica

A4
A4
A4
A4
A4
A4
A4
A4
A4

Ti interessa visionare l'immobile?

Fissa un appuntamento  Fissa un appuntamento

Richiedi informazioni

Clicca su Leggi per aprire l'informativa
* Questi campi sono obbligatori
Affiliato
Studio Centro Urbano Srl
Viale Giovanni Bovio, 672 47023 Cesena (FC)

Il nostro staff


  • Claudio Balducci
    Affiliato

  • Alessandro Casadei
    Responsabile

  • Martina Di Filippo
    Coordinatrice

  • Elia Montalti
    Collaboratore

  • Daniele Pellegrino
    Affiliato
Viale Giovanni Bovio, 672 47023 Cesena (FC)
Zona: Centro Urbano-Stadio-Fiorita-Ospedale-Case Missiroli-Calisese
Mostra su mappa
Orari: Dal lunedì al venerdì dalle 9 alle 13 e dalle 15 alle 19.30. Sabato dalle 9 alle 13
Affiliato
Studio Centro Urbano Srl
Viale Giovanni Bovio, 672 47023 Cesena (FC)

2026 Tecnocasa Franchising S.p.A. - P. IVA 08365160152 - Via Monte Bianco 60/A 20089 Rozzano (MI). Ogni agenzia ha un proprio titolare ed è autonoma. Privacy policy | Policy utilizzo | Cookie policy